Przytulna kawalerka 16,8m² z antresolą, Kraków-Swoszowice
Dodano
Zarchiwizowano: 10 kwietnia 2025
ARCHIWALNE

Kraków, Swoszowice, Małopolskie
16.8 m² Powierzchnia
179 000 zł
Opis
🇵🇱 🇬🇧
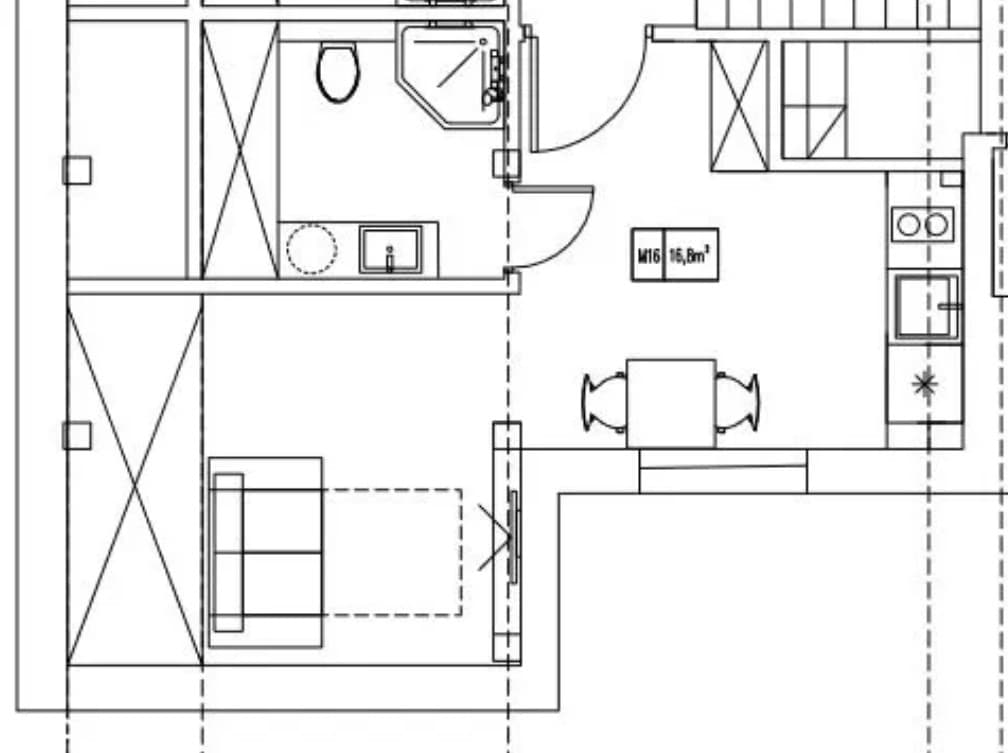
Kameralna kawalerka o powierzchni 16,8 m² w spokojnej części Krakowa (Swoszowice) na ul. Bochnaka. Lokal w stanie deweloperskim, świeżo po remoncie z nowymi instalacjami i ociepleniem.
Układ mieszkania:
- Pokój dzienny z aneksem kuchennym
- Łazienka z toaletą
- Sypialnia na antresoli
Kluczowe cechy:
- Nowoczesna, energooszczędna kotłownia
- Nowa stolarka drzwiowa
- Wyremontowane klatki schodowe
- Ogrodzony teren z dostępem do wspólnych ogródków
- Możliwość zakupu miejsca postojowego
Lokalizacja:
- Kameralna inwestycja (17 lokali na 3 kondygnacjach)
- Okolica z niską zabudową
- Bliskość małych sklepów, lokali gastronomicznych i usługowych
- Dobra komunikacja z centrum miasta i obwodnicą
Dodatkowe informacje:
- Dostępne więcej lokali o podobnym metrażu w Krakowie
- Możliwość pomocy w uzyskaniu kredytu przez doświadczonych doradców finansowych
Idealny wybór dla singla lub jako inwestycja pod wynajem!
Cozy studio apartment of 16.8 m² in a quiet part of Krakow (Swoszowice) on Bochnaka Street. The property is in developer's finish, freshly renovated with new installations and insulation.
Apartment layout:
- Living room with kitchenette
- Bathroom with toilet
- Bedroom in the mezzanine
Key features:
- Modern, energy-efficient boiler room
- New door woodwork
- Renovated staircases
- Fenced area with access to shared gardens
- Possibility to purchase a parking space
Location:
- Intimate investment (17 apartments on 3 floors)
- Area with low-rise buildings
- Proximity to small shops, eateries, and service points
- Good communication with the city center and ring road
Additional information:
- More apartments of similar size available in Krakow
- Possibility of assistance in obtaining a mortgage through experienced financial advisors
Perfect choice for singles or as a rental investment!
Podobne ogłoszenia
Inne kawalerki, które mogą Cię zainteresować







